Grace Classical Christian Academy

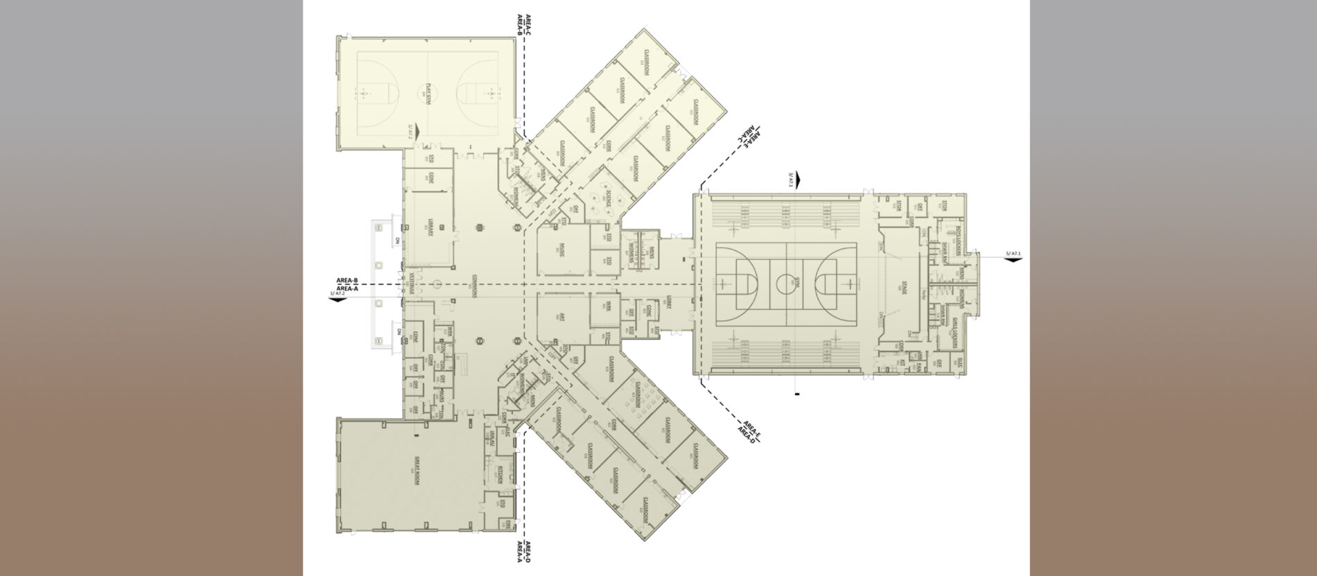
Callahan & Freeman’s solution for a new K-12 private school provides a centralized commons area at the main entry porch. A great room and play gymnasium flank the commons, with classroom wings angled off each side. A competition gymnasium anchors the rear of this steel framed and pre-engineered metal building. Brick veneer, cast stone, metal wall panels and EIFS clad the exterior of this school.